a sculpture in the park – rewarded
The Sara Hildén Art Museum is designed as a strong sculptural monolith for artwork with a minimal footprint to maximize sightlines and unite the green park, the industrial Finlayson Area and the city.
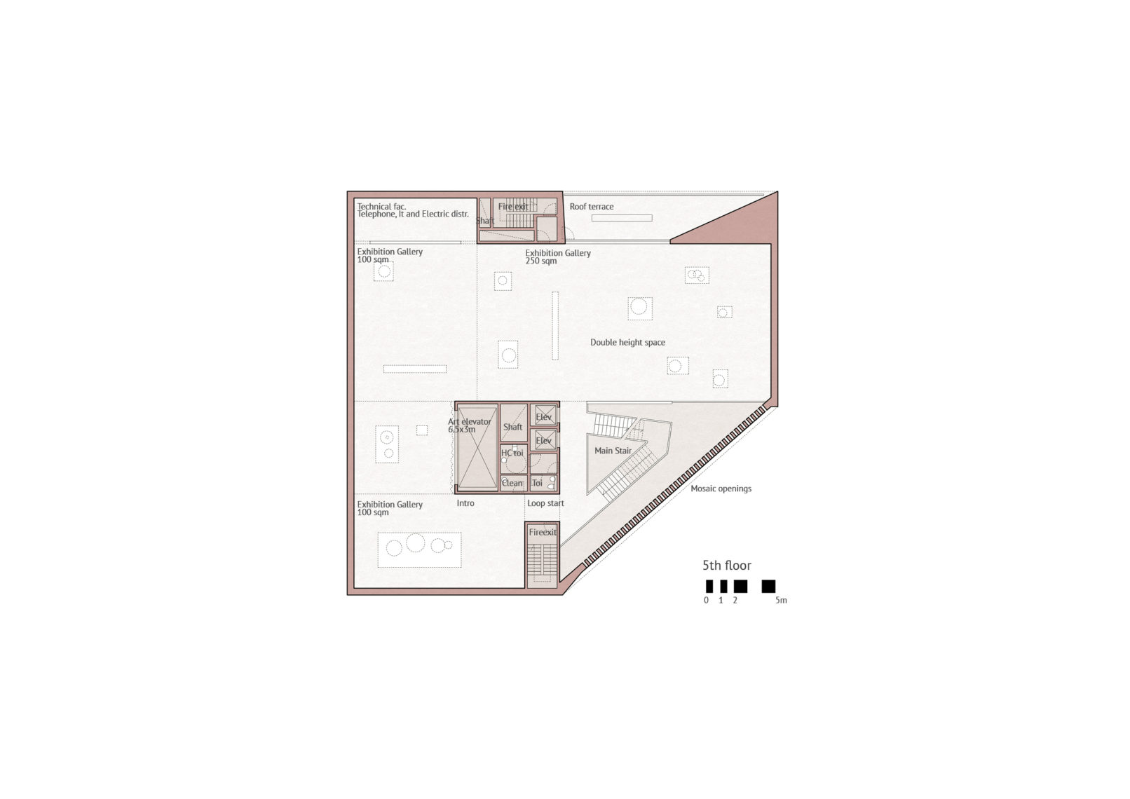
The Museum has an open foyer ground floor and five dividable exhibition levels above ground.
The new museum is adapted and shaped to the context and site by a cut in the cube emphasizing and framing the main entrance. Frames become a signature element creating views to the city, a roof terrace overlooks the surrounding landscape, and skylights with indirect daylight at the top galleries.
The new Sara Hildén Art Museum is an elegant brick sculpture set neatly between park and city, whose form offers a unique way of framing both the artwork and the visitors’ experience within.




















