a shelter in the landscape
Domkirkeodden in Hamar, Norway, is a fantastic place with living traces of the past. The new museum and house of culture is shaped as a simple shelter, inspired by its neighbouring masterpieces of Domkirkeruinene and Storhamarlåven. A shelter for cultural-historical learning and unique experiences.
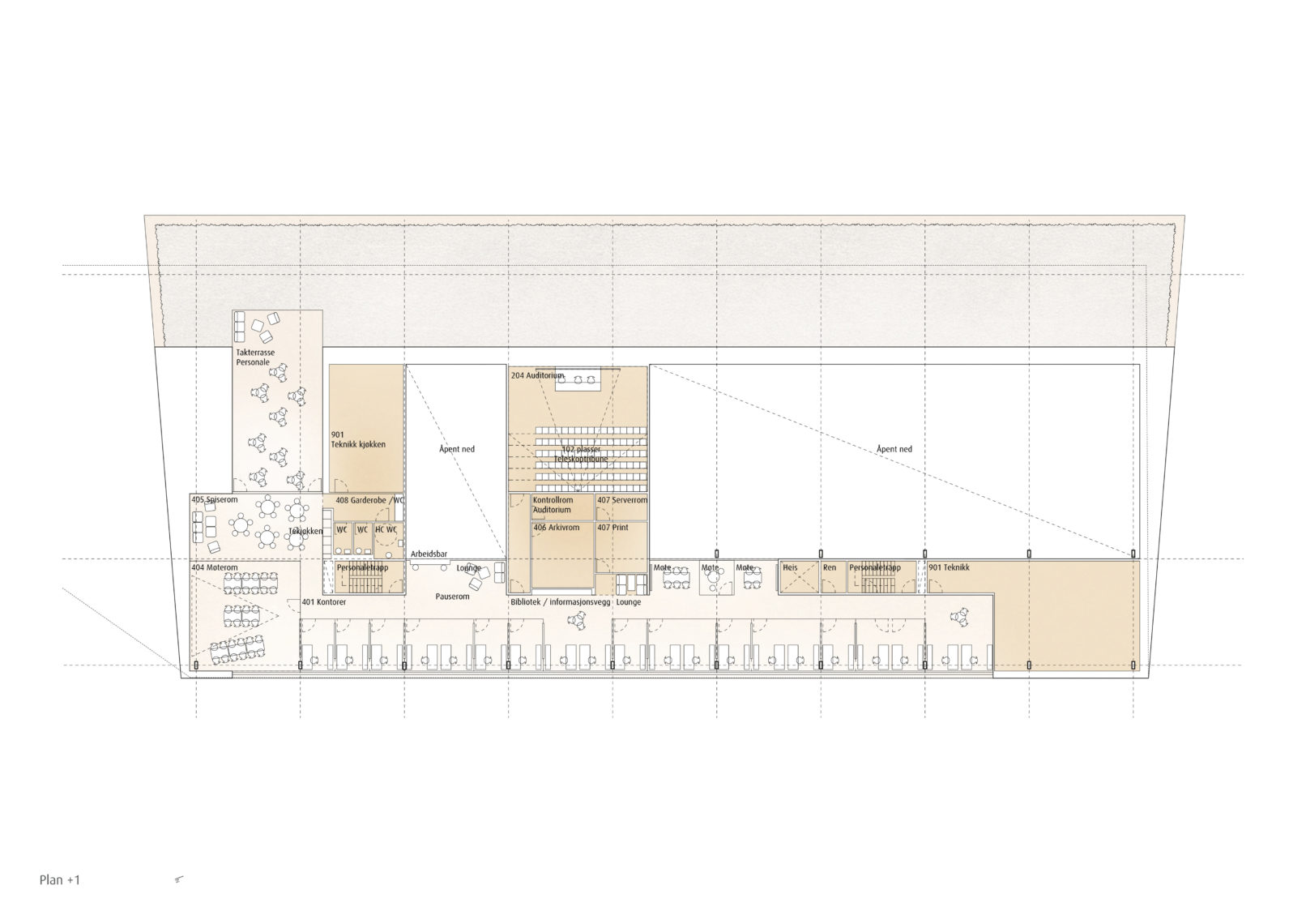
A hovering green roof invites everyone to enter. An elegant roof which gently tilts down towards Mjøsa, and integrates the house within the beautiful landscape. All main spaces under the shelter have panorama views over the water. Underneath the protective roof, the house is open, robust, and has a flexible frame with countless possibilities of arranging different exhibitions and events. The goal of the new museum is to contribute to bringing Anno Museum into the future with a flexible, practical, and sustainable museum and culture house ready for change.
The shelter is sustainable from the all over design to detail, using timber as its primary material. The iconic green shelter respectfully sits within a unique site and landscape, providing panorama view over Mjøsa for all main functions.
Program: Museum, Education and Culture.
Location: Hamar, Norway
Client: Anno Museum as
Size: 5.000 m2
Type: 1st Prize – open international competition















